Generaal De Wetstraat 57
Haarlem
€ 500.000,- k.k.
te koop
Omschrijving
WAT EEN LEUK HUIS! JE LOOPT BINNEN EN JE BENT VERKOCHT.
Achter de charmante voorgevel gaat een leuk huis schuil! In een gezellige straat vlakbij het station, het centrum en winkelstraat De Cronje gelegen fijne eengezinswoning met een besloten achtertuin, een moderne keuken vv diverse inbouwapparatuur, een apart 2e toilet en een prima badkamer op de eerste verdieping. Indien gewenst kan je de woning uitbreiden middels een tweede verdieping (vergunningplichtig).
Indeling;
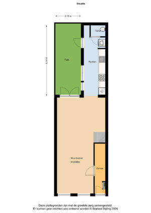
Begane grond; entree, hal met ruimte om de fiets te stallen, woonkamer vv een laminaatvloer en openslaande deuren naar de tuin, aangebouwde moderne keuken vv een kookplaat, afzuigkap, koel/vriescombinatie en een oven, toilet.
1e verdieping; overloop met een dakraam waardoor de overloop lekker licht is, apart 2e toilet, slaapkamer aan de voorzijde met een dakkapel en twee dakvensters, badkamer met een douche en een wastafel, achterslaapkamer met een dakkapel.
Open vliering.
Goed om te weten;
+begane grondvloer uitgevoerd als betonvloer
+op staal gefundeerd, volgens kcaf laag funderingsrisico
+woning vv centrale verwarming
+gewoon een leuke woning waar je jaren mee vooruit kunt
Kenmerken
- Objecttype
- Woonhuis
- Bouwjaar
- 1910
- Ligging
- In woonwijk
- Soort woonhuis
- Eengezinswoning
- Type woonhuis
- Tussenwoning
- Parkeer faciliteit
- Betaald parkeren, Parkeervergunningen
- Dak type
- Mansardedak
- Dak materialen
- Pannen
Aanvaarding
- Vraagprijs
- € 500.000,- k.k.
- Status
- Beschikbaar
- Aanvaarding
- In overleg
- Dagen te koop
- 0
Staat
- Onderhoud binnen
- Goed
- Onderhoud buiten
- Goed
Indeling
- Aantal kamers
- 3
- Aantal slaapkamers
- 2
- Aantal badkamers
- 1
Oppervlakte en inhoud
- Woonoppervlak
- 76 m2
- Perceel
- 68 m2
- Overige inpandige ruimte
- 0 m2
- Buitenruimtes
- 0 m2
- Externe bergruimte
- 0 m2
- Inhoud
- 257 m3
Energie
- Energielabel
- E
- Isolatie
- Dakisolatie, Muurisolatie, Dubbelglas
- Verwarming
- CV ketel
- Warm water
- CV ketel
- CV ketel type
- Nefit Proline
- CV ketel bouwjaar
- 2023
Tuin
- Soort tuin
- Achtertuin
- Staat
- Normaal
- Hoofdtuin
- Achtertuin
- Ligging hoofdtuin
- Noordoost
- Oppervlak hoofdtuin
- 13 m2
Foto's
Plattegronden
Locatie
Downloads
WoningbrochureDeel deze woning
We vertellen je graag meer over de mogelijkheden van dit huis. Bel me gerust voor meer informatie of plan een bezichtiging.
Bel me Plan bezichtigingJouw NVM makelaar
Woningen in de buurt
Bekijk dit huis
Generaal Bothastraat 7
Haarlem
Bekijk dit huis
President Steijnstraat 4
Haarlem
Bekijk dit huis
Schoterweg 35C
Haarlem
Zoek je toch iets anders?
Wat voor een huis je ook zoekt, wij helpen je graag bij het vinden van jouw ideale thuis.
Onze deskundige en ervaren makelaars hebben uitgebreide kennis van de Haarlemse vastgoedmarkt en zijn goed op de hoogte van recente ontwikkelingen en trends. Ze staan klaar om je te begeleiden bij het vinden van jouw droomwoning.
Of je nu een starter bent, een gezin wilt stichten, wilt investeren in vastgoed of op zoek bent naar een seniorenwoning, we hebben de expertise om je te helpen bij elke stap van het proces.
Bij Hugtenburg & de Vries streven we ernaar om je te voorzien van alle benodigde informatie en ondersteuning, zodat je weloverwogen keuzes kunt maken. We luisteren naar je wensen, stellen gerichte vragen en bieden op maat gemaakte oplossingen die aansluiten bij jouw specifieke situatie.
Neem vandaag nog contact met ons op en ontdek hoe we je kunnen bijstaan in de zoektocht naar jouw perfecte huis in Haarlem.
Contact









































