Glipper Dreef 86
Heemstede
€ 650.000,- k.k.
te koop
Omschrijving
FIJNE UITGEBOUWDE EENGEZINSWONING MET EEN VOOR- EN EEN ZONNIGE ACHTERTUIN OP HET ZUIDOOSTEN MET EEN ACHTEROM.
Bijna 133 m2 woongenot op 166 m2 eigen grond op de grens Heemstede Bennebroek! Daar wil je toch wonen!
De begane grond is recentelijk v.v. een uitbouw op de begane grond waardoor er een grote leefruimte is ontstaan. De keuken en de badkamer zijn beiden modern. De ca. 11 meter diepe achtertuin ligt op het zuidoosten, is zonnig en heeft een berging en een achterom. In totaal zijn er 4 slaapkamers.
Indeling;
Begane grond; entree, hal, gang met trapkast en toilet (2025), ruime uitgebouwde woonkamer met openslaande deuren naar de achtertuin, moderne keuken vv diverse inbouwapparatuur (6-pitskooktoestel, oven, koelkast, vaatwasser)
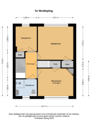
1e verdieping; overloop, 3 slaapkamers, moderne badkamer met een wastafelmeubel, toilet en een inloopdouche.
2e verdieping; overloop, slaapkamer met een dakkapel aan de achterzijde, zolderberging en de c.v.-opstelling.
Goed om te weten;
-op loopafstand van winkelgalerij gelegen
-Groenendaalse bos op steenworp afstand
-mooie brede weg met plantsoen
-grotendeels v.v. isolatieglas, deels HR++ glas
-fijne eengezinswoning!
Kenmerken
- Objecttype
- Woonhuis
- Bouwjaar
- 1950
- Ligging
- In woonwijk
- Voorzieningen
- TV kabel, Rookkanaal
- Soort woonhuis
- Eengezinswoning
- Type woonhuis
- Tussenwoning
- Parkeer faciliteit
- Openbaar parkeren
- Dak type
- Zadeldak
- Dak materialen
- Pannen
Aanvaarding
- Vraagprijs
- € 650.000,- k.k.
- Status
- Beschikbaar
- Aanvaarding
- In overleg
- Dagen te koop
- 5
Staat
- Onderhoud binnen
- Goed
- Onderhoud buiten
- Goed
Indeling
- Aantal kamers
- 5
- Aantal slaapkamers
- 4
- Aantal badkamers
- 1
Oppervlakte en inhoud
- Woonoppervlak
- 133 m2
- Perceel
- 166 m2
- Overige inpandige ruimte
- 0 m2
- Buitenruimtes
- 0 m2
- Externe bergruimte
- 5 m2
- Inhoud
- 466 m3
Energie
- Energielabel
- C
- Isolatie
- Dakisolatie, Vloerisolatie, Dubbelglas, Gedeeltelijk dubbelglas
- Verwarming
- CV ketel
- Warm water
- CV ketel
- CV ketel type
- Remeha
- CV ketel bouwjaar
- 2016
Tuin
- Soort tuin
- Achtertuin, Voortuin
- Staat
- Normaal
- Hoofdtuin
- Achtertuin
- Ligging hoofdtuin
- Zuidoost
- Oppervlak hoofdtuin
- 69 m2
Foto's
Plattegronden
Locatie
Deel deze woning
We vertellen je graag meer over de mogelijkheden van dit huis. Bel me gerust voor meer informatie of plan een bezichtiging.
Bel me Plan bezichtigingJouw NVM makelaar
Woningen in de buurt
Bekijk dit huis
Kohnstammlaan 20-GB2 ong
Heemstede
Bekijk dit huis
Van Leeuwenhoekstraat 60
Haarlem
Bekijk dit huis
Engelandlaan 152
Haarlem
Zoek je toch iets anders?
Wat voor een huis je ook zoekt, wij helpen je graag bij het vinden van jouw ideale thuis.
Onze deskundige en ervaren makelaars hebben uitgebreide kennis van de Haarlemse vastgoedmarkt en zijn goed op de hoogte van recente ontwikkelingen en trends. Ze staan klaar om je te begeleiden bij het vinden van jouw droomwoning.
Of je nu een starter bent, een gezin wilt stichten, wilt investeren in vastgoed of op zoek bent naar een seniorenwoning, we hebben de expertise om je te helpen bij elke stap van het proces.
Bij Hugtenburg & de Vries streven we ernaar om je te voorzien van alle benodigde informatie en ondersteuning, zodat je weloverwogen keuzes kunt maken. We luisteren naar je wensen, stellen gerichte vragen en bieden op maat gemaakte oplossingen die aansluiten bij jouw specifieke situatie.
Neem vandaag nog contact met ons op en ontdek hoe we je kunnen bijstaan in de zoektocht naar jouw perfecte huis in Haarlem.
Contact









































